Aktuelno
 
   
   
 
     
 
 
 
 
 
 
 
 
 
 
 
 
 
 
 
 
 
     
Aktuelno
Novopazarska 22
U Novopazarskoj ulici (bivša Sime Miloševića) na broju 22 nalazi se naš novi stambeno-poslovni objekat. Odlikuje ga smeo izbor materijala i boja kojim uspeva da osveži i obeleži celu ulicu svojom skromnom zapreminom.

Zgrada je izvedena kvalitetnim materijalima i opremljena svim neophodnim savremenim instalacijama. Objekat je obezbeđen sistemom za video nadzor. Posebna pažnja je posvećena rešavanju i materijalizaciji detalja kako u enterijeru tako i spoljnom uređenju i ozelenjavanju.

U prizemlju je smešten poslovni prostor, dok su na pet spratova isprojektovani stanovi različitih struktura. Tehničke prostorije smeštene su u nivou prizemlja. Parkiranje je delom predviđeno u podrumskoj garaži, a delom u dvorištu u prizemlju.

Jedna od vrednosti naše zgrade i njenih stanova su veliki prozorski otvori koji dopuštaju svetlosti i svežini da uđe u stanove, hodnike i stepenište.

Raspolažemo sa 2 tipa stanova:
  • Dvosoban stan od 54.74m² sa dve orijentacije: severnom i južnom. Stan ima veliku dnevnu sobu sa delom za trpezarisjki sto i funkcionalnom kuhinjom u nastavku. Spavaća soba je prostrana sa predviđenom zonom za plakar. Kupatilo je optimalne veličine i estetski skladno, izvedeno keramikom i sanitarijama prve klase. Obe sobe izlaze na lođu zahvalne forme i otvorenosti ka ulici. Postoje 2 verzije stana u kojima je kupatilo sa klasičnom kadom (1. i 2. sprat) i druga sa tuš kadom u kupatilu (3. i 4. sprat).

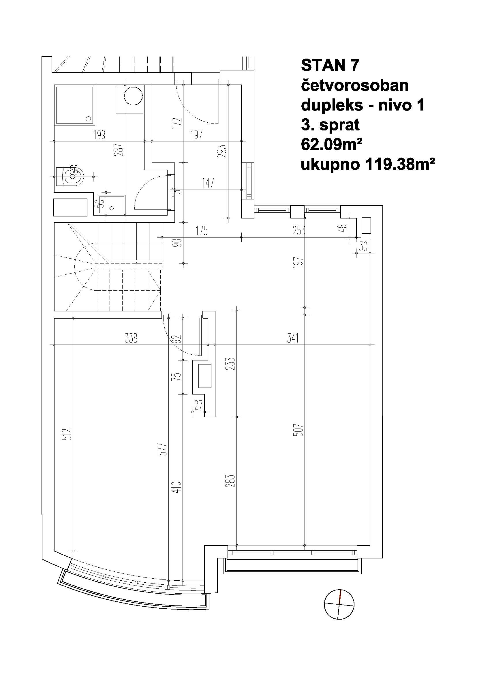
  • Četvorosoban stan od 119.38m² na dva nivoa i sa dve orijentacije: južnom i severnom. Na donjem nivou nalazi se prostrana dnevna soba, trpezarija sa kuhinjom i veliko luksuzno opremljeno kupatilo. U sve prostorije se pristupa preko komotne ulazne zone iz koje se stepeništem penje i na drugi nivo. Na gornjem nivou nalaze se 3 sobe, prostrano kupatilo i velika prostorija za garderobu. Kupatilo na donjem nivou je opremljeno tuš kadom sa kabinom, a kupatilo na gornjem nivou ima hidromasažnu kadu. Stan ima mnogo svetla pre svega zahvaljujući 'francuskim balkonima' duž celih zidova.
Eksterijer:
     
     
     
     
 
Enterijer:
     
     
     
     
     
     
Detalji:
     
     
     
     
     
     
     
     
Stanovi:
     
     
 
o nama | kvalitet gradnje | aktuelno | reference | kontakt

All rights reserved by Ivera d.o.o. 11000 Beograd
Web Design by TwoSpots